HOME
215 Cragmont
Form Inquiry 1
A Frame / 2018
Europe 92
Chapel for Demosthenes / 2018
Form Inquiry 2
Photography
New River Bath House
NRBH Model Shoot
Color Work
Repository
Chairhouse
Onehouse
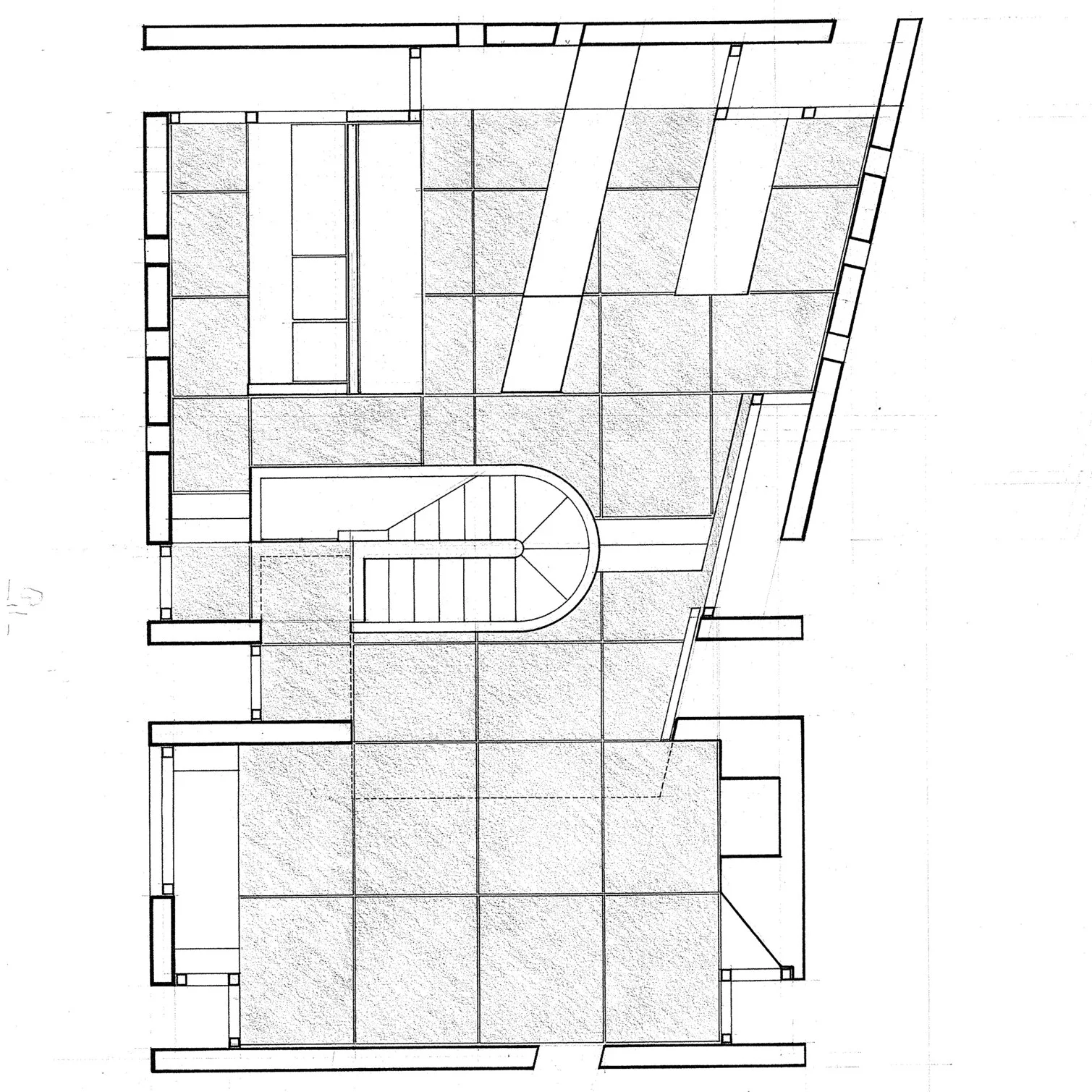
Bazett House FLLW
Hannah House FLLW
LOG
CONTACT
*
Menu
Tom Patteson Architecture
HOME
215 Cragmont
Form Inquiry 1
A Frame / 2018
Europe 92
Chapel for Demosthenes / 2018
Form Inquiry 2
Photography
New River Bath House
NRBH Model Shoot
Color Work
Repository
Chairhouse
Onehouse
Bazett House FLLW
Hannah House FLLW
LOG
CONTACT
*
prev
/
next
1
2
3
4
5
6
·
·
·
·
·
·
show thumbnails